Wellington Road, Blackpool, FY1 6AR
Property Features
- For Sale by Online Auction
- 4 Holiday Flats
- Full Planning Permission
- Well Presented Throughout
- 2 x 2 Bedroom Flats
- 2 x 1 Bedroom Flats
- Prime Tourist Location Close to the Promenade
- Walking Distance to Major Attractions
- NO CHAIN
- Viewings Available in Person
Property Summary
Full Details
"Blackpool Lodge Apartments", Wellington Road - Substantial Semi-Detached Property - Four Self-Contained Holiday Apartments - Prime Location - No Chain
"Blackpool Lodge Apartments" is an imposing and substantial semi-detached property located on Wellington Road, comprising four self-contained apartments, all benefiting from full planning consent for holiday use, making this an outstanding investment opportunity in one of Blackpool's most popular tourist areas.
The property is arranged over three floors and offers a versatile and attractive setup for holiday lets, with each apartment thoughtfully designed to provide comfortable and modern accommodation for guests.
Flat 1 (Ground Floor) offers a spacious open-plan lounge and kitchen area, two well-proportioned double bedrooms, and a modern fitted bathroom.
Flat 2 (Ground Floor) is similar in style and layout, featuring a bright lounge/kitchen area, one double bedroom, and a modern fitted bathroom.
Flat 3 (First Floor) provides generous accommodation with a spacious lounge, a modern fitted kitchen, two double bedrooms, and a contemporary bathroom.
Flat 4 (Loft Apartment) is a stylish and trendy loft conversion featuring a characterful lounge with a feature beamed ceiling, a modern fitted kitchen, one double bedroom, and a bathroom.
Ideally positioned in a prime tourist location in Blackpool, the property is within easy reach of the famous promenade, Blackpool Football Club, and excellent transport connections including the M55 motorway. It is also conveniently located close to some of the resort's most popular attractions such as the Sandcastle Waterpark and Blackpool Pleasure Beach, ensuring strong appeal for visiting holidaymakers.
Offered for sale with no onward chain, this impressive property represents an excellent holiday let investment opportunity in one of the UK's best-known seaside destinations.
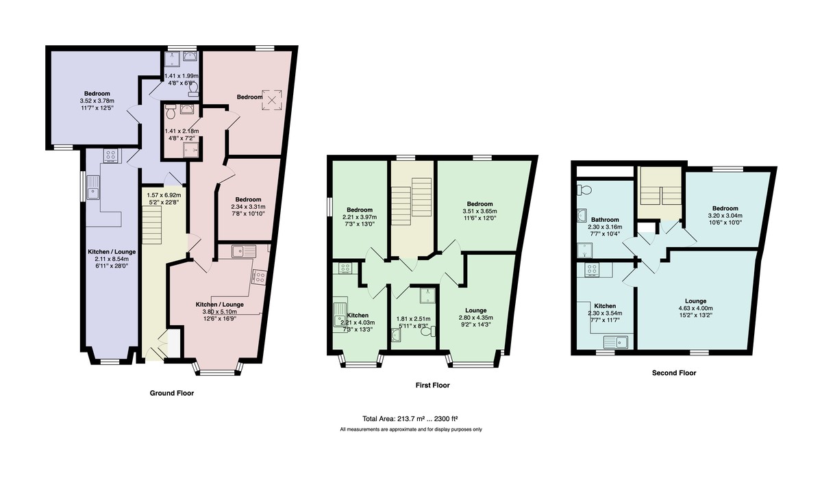
GROUND FLOOR
SPACIOUS COMMUNAL HALLWAY 22' 8" x 5' 2" (6.91m x 1.57m)
FLAT 1
KITCHEN/LOUNGE 16' 9" x 12' 6" (5.11m x 3.81m)
BEDROOM ONE 7' 8" x 10' 10" (2.34m x 3.3m)
BEDROOM TWO
BATHROOM 4' 8" x 7' 2" (1.42m x 2.18m)
FLAT 2
KITCHEN/LOUNGE 28' 0" x 6' 11" (8.53m x 2.11m)
BEDROOM 11' 7" x 12' 5" (3.53m x 3.78m)
BATHROOM 4' 8" x 6' 6" (1.42m x 1.98m)
FIRST FLOOR
FLAT 3
LOUNGE 9' 2" x 14' 3" (2.79m x 4.34m)
KITCHEN 13' 3" x 7' 3" (4.04m x 2.21m)
BEDROOM ONE 11' 6" x 12' 0" (3.51m x 3.66m)
BEDROOM TWO 7' 3" x 13' 0" (2.21m x 3.96m)
BATHROOM 5' 11" x 8' 3" (1.8m x 2.51m)
SECOND FLOOR
FLAT 4
LOUNGE 15' 2" x 13' 2" (4.62m x 4.01m)
KITCHEN 7' 7" x 11' 7" (2.31m x 3.53m)
BEDROOM 10' 6" x 10' 0" (3.2m x 3.05m)
BATHROOM 7' 7" x 10' 4" (2.31m x 3.15m)
COVERAGE BROADBAND
We are advised that the property can obtain Fibre to the Property (FTTP)
MOBILE DATA
We are advised that you are likely to have mobile coverage
We would suggest that you also make your own enquiries as to Mobile Data coverage https://checker.ofcom.org.uk/en-gb/mobile-coverage
AUCTION INFORMATION This property is for sale by online auction under WebbMove Auctions ('The Auctioneer'). Lots sold by the Auctioneer will typically be sold under unconditional auction terms.
The auction end date for this property is scheduled for 21st April 2026. Please note some circumstances can cause this date to change, and it may close before the scheduled end date.
Upon acceptance of their bid, the winning bidder will be required to pay both a deposit and a buyer's premium within 24 hours. Typically, this will be 10% of the sale price and 4% plus VAT of the sale price (subject to a minimum of £4,000 plus VAT) respectively. The deposit will form part of the sale price on completion of the sale, the buyer's premium will be retained by The Auctioneer as a fee for their services.
Most properties can be viewed prior to the auction date either in person or through our virtual 360 tours and can be arranged via Tiger Sales and Lettings.
Prospective buyers will be required to register with The Auctioneer, upon doing this they will be able to download legal information and place bids. Visit the Auctioneer's website to register, in-line with anti-money laundering regulations, a prospective buyer's identity will have to be verified before a bid(s) can be placed.
For specifics relating to the auction/sale, a buyer should download and review the Legal Pack via The Auctioneer's website, paying special attention to the Special Conditions, the auctioneers' terms and conditions, and the RICS Common Auction Conditions. We recommend seeking the advice of a competent legal advisor before placing a bid.
Looking to SELL by AUCTION rather than BUY? Get in touch for your free valuation! You never know, your property may be worth more than you think.
WebbMove Auctions is a trading name of Tiger Sales and Lettings Ltd








































































