Northumberland Avenue, Blackpool, FY2 9SA
Property Features
- Freehold Block of 5 Self-Contained Flats
- 1 x Two-Bedroom Flats and 4 x One-Bedroom Flats
- Fully Let Producing Approx. £28,000 PA
- Approx. 13% Yield at Starting Price
- Circa 2,000 sq ft Accommodation
- Fully Compliant Investment
- Popular North Shore Location
- Short Walk to the Promenade
- Excellent Tram and Bus Links
- Viewings Available in Person or via our 360 Virtual Tour
Property Summary
Full Details
Substantial Fully Let Block of 5 Flats - High Yielding Investment Opportunity
A rare opportunity to acquire a substantial freehold block comprising five self-contained flats, located in the popular residential area of North Shore. This ready-made investment is fully let, fully compliant, and generating an annual rental income of approximately £28,000, representing an attractive yield of around 13% based on the guide price.
Extending to approximately 2,000 sq ft, the property is arranged as one 2-bedroom flats and four 1-bedroom flats, all of which are currently tenanted, providing immediate income from day one.
The property is situated in the well-established North Shore residential area, just a short walk from the Promenade. Excellent tram and bus links nearby provide convenient access to all areas of the Fylde Coast, while a range of local shops, amenities, and services are close at hand, making the location consistently popular with tenants.
This is an ideal acquisition for buy-to-let investors seeking a strong yielding, fully operational asset with established rental income and potential for long-term capital growth.
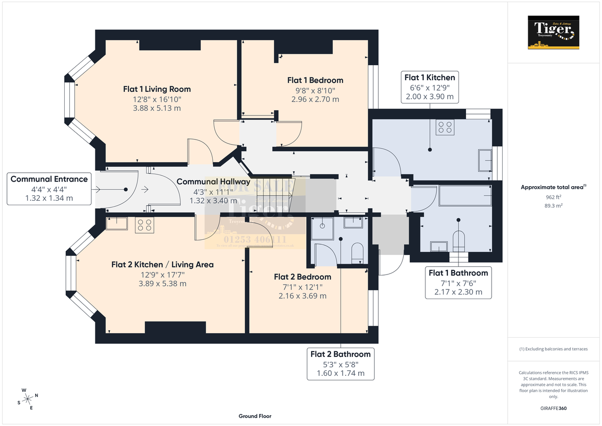
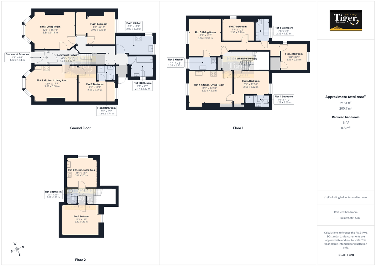
GROUND FLOOR
COMMUNAL ENTRANCE 4' 4" x 4' 4" (1.32m x 1.32m)
COMMUNAL HALLWAY 11' 1" x 4' 3" (3.38m x 1.3m)
FLAT 1
LIVING ROOM 12' 8" x 16' 10" (3.86m x 5.13m)
KITCHEN 6' 6" x 12' 9" (1.98m x 3.89m)
BEDROOM 8' 10" x 9' 8" (2.69m x 2.95m)
BATHROOM 7' 1" x 7' 6" (2.16m x 2.29m)
FLAT 2
LIVING ROOM/KITCHEN 12' 9" x 17' 7" (3.89m x 5.36m)
BEDROOM 7' 1" x 12' 1" (2.16m x 3.68m)
BATHROOM 5' 3" x 5' 8" (1.6m x 1.73m)
FIRST FLOOR
FLAT 3
LIVING ROOM 12' 8" x 11' 10" (3.86m x 3.61m)
KITCHEN 9' 6" x 4' 4" (2.9m x 1.32m)
BEDROOM ONE 10' 9" x 7' 7" (3.28m x 2.31m)
BEDROOM TWO 9' 8" x 8' 9" (2.95m x 2.67m)
BATHROOM 7' 8" x 4' 6" (2.34m x 1.37m)
FLAT 4
LIVING ROOM/KITCHEN 14' 10" x 116' 6" (4.52m x 35.51m)
BEDROOM 11' 10" x 8' 4" (3.61m x 2.54m)
BATHROOM 4' 0" x 7' 10" (1.22m x 2.39m)
SECOND FLOOR
FLAT 5
LIVING ROOM/KITCHEN 11' 1" x 11' 7" (3.38m x 3.53m)
BEDROOM 11' 5" x 3' 9" (3.48m x 1.14m)
BATHROOM 5' 11" x 3' 11" (1.8m x 1.19m)
COVERAGE BROADBAND
We are advised that the property can obtain Fibre to the Cabinet (FTTC)
MOBILE DATA
We are advised that you are likely to have mobile coverage
We would suggest that you also make your own enquiries as to Mobile Data coverage https://checker.ofcom.org.uk/en-gb/mobile-coverage
AUCTION INFORMATION This property is for sale by online auction under WebbMove Auctions ('The Auctioneer'). Lots sold by the Auctioneer will typically be sold under unconditional auction terms.
The auction end date for this property is scheduled for 14th April 2026. Please note some circumstances can cause this date to change, and it may close before the scheduled end date.
Upon acceptance of their bid, the winning bidder will be required to pay both a deposit and a buyer's premium within 24 hours. Typically, this will be 10% of the sale price and 4% plus VAT of the sale price (subject to a minimum of £4,000 plus VAT) respectively. The deposit will form part of the sale price on completion of the sale, the buyer's premium will be retained by The Auctioneer as a fee for their services.
Most properties can be viewed prior to the auction date either in person or through our virtual 360 tours and can be arranged via Tiger Sales and Lettings.
Prospective buyers will be required to register with The Auctioneer, upon doing this they will be able to download legal information and place bids. Visit the Auctioneer's website to register, in-line with anti-money laundering regulations, a prospective buyer's identity will have to be verified before a bid(s) can be placed.
For specifics relating to the auction/sale, a buyer should download and review the Legal Pack via The Auctioneer's website, paying special attention to the Special Conditions, the auctioneers' terms and conditions, and the RICS Common Auction Conditions. We recommend seeking the advice of a competent legal advisor before placing a bid.
Looking to SELL by AUCTION rather than BUY? Get in touch for your free valuation! You never know, your property may be worth more than you think.
WebbMove Auctions is a trading name of Tiger Sales and Lettings Ltd






































